HOME
RESIDENCES
CONDOMINIUMS
FLOOR PLANS
BACK
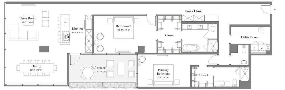
7230
2B-12
2 Bed | 2.5 Bath
+/- 2053 Interior SF
+/- 228 Exterior SF
South Exposure
DOWNLOAD
INQUIRE